詳情介紹:
簡述
全自動一體化凈水設備(重力虹吸式,無須電力自動反沖洗;)設備主體為常壓式敞口箱體,可以有效利用山區水庫水靜壓及水泵提升的剩余揚程完成混合、混凝反應、沉淀、過濾、反沖等凈化過程。
性能參數
(1) 出水水量:5m3/h-500m3/h等等;
(2) 適用原水濁度:≤3000NTU;
(3) 水溫:常溫;
(4) 出水濁度:≤1NTU;
(5) 過濾區設計濾速:8~14m/h;
(6) 總停留時間:t總=45~50min;
(7) 運行壓力:P≤0.06MPa;
技術說明
1.工藝流程圖

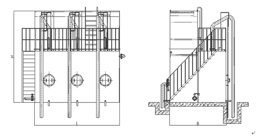
2.結構及安裝示意圖

3.技術參數
全自動一體化凈水設備(重力虹吸式,無須電力自動反沖洗;)設備主體為常壓式敞口箱體,可以有效利用山區水庫水靜壓及水泵提升的剩余揚程完成混合、混凝反應、沉淀、過濾、反沖等凈化過程。
性能參數
(1) 出水水量:5m3/h-500m3/h等等;
(2) 適用原水濁度:≤3000NTU;
(3) 水溫:常溫;
(4) 出水濁度:≤1NTU;
(5) 過濾區設計濾速:8~14m/h;
(6) 總停留時間:t總=45~50min;
(7) 運行壓力:P≤0.06MPa;
技術說明
1.工藝流程圖

2.結構及安裝示意圖

| 型號 | 凈水能力 | 外形尺寸 | 反應時間 | 濾速 | 運行壓力 | 設備質量 |
| m3/h | L×B×H(mm) | min | m/h | MPa | kg | |
| JS-30 | 30 | 2800×2900×4800 | 12 | 8~14 | 0.06 | 17600 |
| JS50 | 50 | 4500×3000×4800 | 11.2 | 8~14 | 0.06 | 21000 |
| JS60 | 60 | 4800×3200×4800 | 11.2 | 8~14 | 0.06 | 23000 |
| JS80 | 80 | 6000×3000×4800 | 11.2 | 8~14 | 0.06 | 25600 |
| JS100 | 100 | 6400×3600×4800 | 11.2 | 8~14 | 0.06 | 30100 |
| JS150 | 150 | 8000×4200×4800 | 11 | 8~14 | 0.06 | 35280 |
| JS200 | 200 | 8800×4500×4800 | 10 | 8~14 | 0.06 | 42100 |
| JS250 | 250 | 12000×4500×4800 | 10 | 8~14 | 0.06 | 48600 |
|
|
|
100噸/時全自動一體化凈水設備使用現場(重力虹吸式)
2*20噸/時一體化凈水設備在農村飲水工程中使用;
20噸/時一體化凈水設備在農村飲水工程中使用;
100噸/時一體化凈水設備使用中
專業設計、生產制造廠家,歡迎聯系!












